Баня является неотъемлемой частью русской культуры и традиций. Многие люди мечтают о собственной бане на даче или в загородном доме. И если у вас есть площадь 6х6 метров, то мы предлагаем вам рассмотреть проект бани с мансардой.


















































Планировка бани
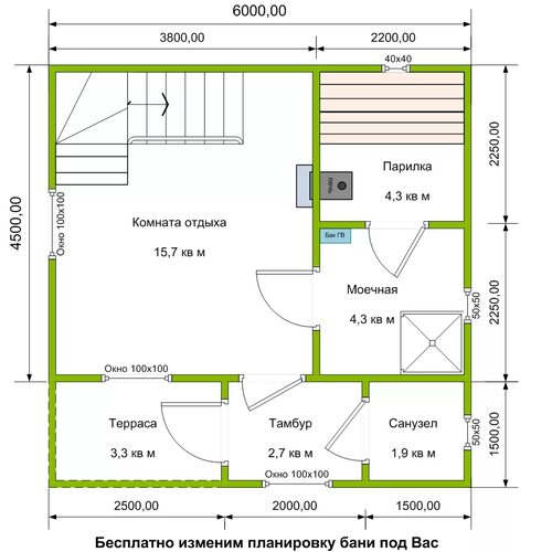
Планировка бани включает в себя основное помещение с парилкой и комнатой отдыха, а также мансарду, которая может использоваться для размещения спальной зоны или дополнительного пространства для отдыха. Возможности использования мансарды ограничены только вашей фантазией.
Основное помещение бани может быть организовано следующим образом:
1. Парилка
Парилка является главным помещением бани, где вы можете насладиться традиционной русской баней. Здесь должно быть достаточно места для установки печи, полок для отдыха и вентиляции для комфортного отдыха.
2. Комната отдыха
После парилки можно отдохнуть в комнате отдыха, где можно расслабиться, попить чай или пообщаться с друзьями. Здесь можно разместить удобные мебельные гарнитуры и столик для чая.
3. Мансарда
Мансарда в бане 6х6 метров может быть использована для различных целей. Вы можете организовать спальную зону со спальными местами или создать пространство для чтения, игр или дополнительного отдыха. Важно учесть, что мансарда должна быть хорошо изолирована и оборудована окнами для естественного освещения.

















































Фотографии бани с мансардой
Для вдохновения предлагаем вам ознакомиться с фотографиями бань с мансардой размером 6х6 метров. Здесь вы найдете различные варианты дизайна и организации пространства, которые помогут вам сделать выбор и создать уютное место для отдыха на вашем участке.
Вывод:
Баня с мансардой размером 6х6 метров может стать прекрасным дополнением вашей загородной недвижимости. Здесь вы сможете насладиться традиционной русской баней и провести время с семьей и друзьями. Используйте представленные фотографии и проекты для вдохновения и создания уникального пространства для отдыха и релаксации.