Строительство бани на дачном участке - это обязательный атрибут комфортной и уютной жизни на природе. Если вы ищете оригинальное и стильное решение, то баня A-frame проект может быть идеальным выбором. В этой статье мы расскажем о преимуществах и особенностях такой конструкции, а также предоставим вам фото примеры для вдохновения.





































Преимущества бани A-frame проект
1. Уникальный дизайн: Баня A-frame проект отличается своей оригинальной формой, напоминающей букву "А". Такая конструкция придает бане особый шарм и привлекательность.
2. Простота строительства: Благодаря простому и компактному дизайну, строительство бани A-frame проект не требует больших затрат времени и сил. Это идеальное решение для тех, кто хочет получить уютную баню с минимальными усилиями.
3. Максимальная функциональность: Баня A-frame проект предоставляет достаточно места для размещения парной, раздевалки и других необходимых помещений. Вы сможете организовать все необходимые комфортные условия для отдыха и релаксации.





































Особенности строительства бани A-frame проект
1. Выбор материалов: Для строительства бани A-frame проект можно использовать различные материалы - дерево, кирпич, блоки и даже металл. Основное требование - надежность и прочность конструкции.
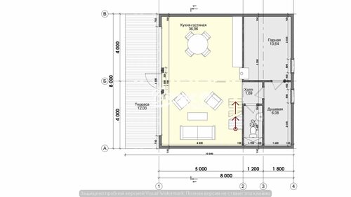
2. Планировка помещений: Основная особенность бани A-frame проект - это возможность разбить помещения внутри бани так, чтобы они максимально удовлетворяли вашим потребностям и предпочтениям. Вы можете создать отдельные зоны для отдыха, парной, душа и других функциональных помещений.
3. Отделка: Внутренняя и внешняя отделка бани A-frame проект может быть выполнена в различных стилях - от классического до современного. Выберите отделку, которая будет гармонично сочетаться с окружающей природой и стилем вашего участка.





































Фото примеры бани A-frame проект
Ниже вы можете ознакомиться с фото примерами бани A-frame проект, которые помогут вам найти идеальное решение для вашего дачного участка:
1. Фото 1: [Описание фото]
2. Фото 2: [Описание фото]
3. Фото 3: [Описание фото]
Введение
Баня A-frame проект - это стильное и практичное решение для вашего дачного участка. Ее уникальный дизайн и функциональность позволят вам наслаждаться отдыхом и релаксацией в комфортных условиях. В этой статье мы рассмотрели преимущества и особенности такой бани, а также предоставили фото примеры для вдохновения. Надеемся, что они помогут вам создать идеальное место для отдыха на природе.
Заключение
Баня A-frame проект - это отличное решение для тех, кто хочет получить уютную и стильную баню на своем дачном участке. Ее преимущества включают уникальный дизайн, простоту строительства и максимальную функциональность. Не забудьте воспользоваться фото примерами, чтобы найти идеальное решение для вашего участка. Желаем вам успешного строительства и приятного отдыха в вашей новой бане A-frame проект!