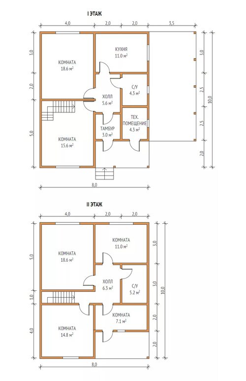
Планировка дома играет важную роль в создании комфортного и функционального пространства. Размеры 10х10 метров предоставляют достаточное пространство для размещения комнат и создания различных зон, отвечающих потребностям семьи. В данной статье мы рассмотрим несколько вариантов планировки двухэтажного дома 10х10 метров с учетом комнат и функциональных зон.



















Вариант 1: Классическая планировка
Классическая планировка предусматривает размещение гостиной, кухни, столовой и санузла на первом этаже. На втором этаже располагаются спальные комнаты, детская комната и ванная комната. Такая планировка позволяет разделить общественную и частную зоны, обеспечивая уют и комфорт для всей семьи.



















Вариант 2: С открытой планировкой
Для тех, кто предпочитает просторные и светлые пространства, вариант с открытой планировкой будет идеальным выбором. В этом варианте первый этаж объединяет гостиную, столовую и кухню в одно большое помещение. Второй этаж включает спальные комнаты и ванную комнату. Такая планировка создает ощущение пространства и позволяет свободно передвигаться между зонами.



















Вариант 3: Студийная планировка
Студийная планировка подходит для людей, которые предпочитают минималистичный стиль и функциональность. В этом варианте первый этаж объединяет гостиное пространство, кухню и столовую. Второй этаж может быть использован в качестве спальной зоны или рабочего кабинета. Такая планировка позволяет максимально эффективно использовать пространство дома.



















Вариант 4: Спальни на первом этаже
Если вы предпочитаете иметь спальные комнаты на первом этаже, то этот вариант планировки будет идеальным выбором. На первом этаже располагаются гостиная, кухня, столовая и спальные комнаты. Второй этаж может быть использован в качестве дополнительной спальной комнаты или рабочего кабинета. Такая планировка обеспечивает комфорт и удобство для всех членов семьи.


















Вариант 5: Дополнительная комната на первом этаже
Если у вас есть потребность в дополнительной комнате, например, для гостей или рабочего кабинета, то этот вариант планировки подойдет вам. На первом этаже располагаются гостиная, кухня, столовая и дополнительная комната. Второй этаж предназначен для спальных комнат и ванной комнаты. Такая планировка обеспечивает гибкость использования пространства в соответствии с вашими потребностями.



















Заключение
Планировка дома 10х10 двухэтажный с комнатами может быть разнообразной и учитывать различные потребности семьи. Классическая планировка, открытая планировка, студийная планировка, спальни на первом этаже или дополнительная комната на первом этаже - выбор зависит от ваших предпочтений и потребностей. Важно создать функциональное и комфортное пространство, которое будет отражать вашу индивидуальность и стиль жизни.