Планирование дома является важным этапом в процессе строительства. Одним из популярных элементов дизайна, который добавляет элегантности и функциональности дому, является эркер. Эркер - это выступающая конструкция, обычно с панорамными окнами, которая может использоваться как дополнительное пространство внутри дома.
Дома с эркерами двухэтажного типа предлагают еще больше возможностей для создания просторных и комфортных помещений. Ниже представлены различные планы домов с эркерами, которые могут вдохновить вас на разработку своего собственного проекта.







































Планы домов с эркерами на первом этаже
Одним из вариантов плана дома с эркером на первом этаже может быть размещение эркера в гостиной или столовой. Такой план создаст просторное и светлое помещение, идеальное для семейных вечеров и приема гостей.
Другой вариант - размещение эркера в спальне. Это позволит создать уютное место для отдыха с панорамным видом на окружающую природу.


































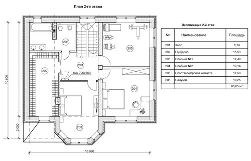
Планы домов с эркерами на втором этаже
На втором этаже дома с эркером можно разместить просторную гостевую комнату или офис. Эркерное окно добавит в помещение света и пространства, создавая комфортную атмосферу для работы или отдыха.
Другой вариант - размещение эркера в спальне на втором этаже. Это позволит создать уникальное место для отдыха, где можно будет наслаждаться прекрасным видом и расслабиться после долгого дня.






































Заключение
План дома с эркером двухэтажный предлагает множество возможностей для создания уникального и функционального дизайна. При выборе плана обратите внимание на размеры эркера, его расположение и возможности использования. Ваш дом с эркером будет привлекать восхищенные взгляды и станет идеальным местом для комфортного проживания.
Надеемся, что эта статья вдохновит вас на создание своего собственного плана дома с эркером двухэтажного типа. Будьте творческими и не бойтесь экспериментировать с дизайном, чтобы создать уютное и функциональное пространство, отражающее вашу индивидуальность.