Построить свой собственный дом - это мечта многих людей. Если вы планируете построить одноэтажный дом размером 12 на 12 метров, то вам потребуется хорошая планировка и дизайн, чтобы создать комфортное и функциональное пространство. В этой статье мы предлагаем вам некоторые идеи и варианты, которые помогут вам воплотить вашу мечту в реальность.



















1. Современный стиль
Современные дома отличаются минималистичным дизайном, простыми формами и чистыми линиями. Если вы предпочитаете современный стиль, то ваш дом 12 на 12 может быть построен с использованием современных материалов, таких как стекло, металл и бетон. Большие окна и открытые планировки позволят максимально использовать естественный свет и создать ощущение простора.



















2. Классический стиль
Если вы предпочитаете более традиционные решения, то классический стиль может быть идеальным выбором для вашего дома. Классические дома обычно имеют крышу с двумя или четырьмя скатами, фасад с декоративными элементами и уютные интерьеры. Вы можете использовать натуральные материалы, такие как кирпич или дерево, чтобы создать теплую атмосферу в вашем доме.



















3. Минималистичный стиль
Минимализм - это стиль, который подходит для тех, кто предпочитает простоту и функциональность. В доме 12 на 12 метров в минималистичном стиле, каждый квадратный метр будет использован с максимальной эффективностью. Гладкие поверхности, нейтральная цветовая палитра и скрытые хранительные системы помогут создать чистый и упорядоченный интерьер.



















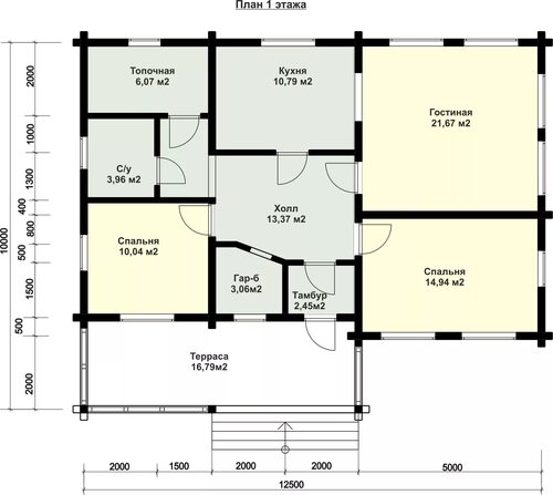
4. Планировка дома
Планировка вашего дома 12 на 12 метров должна быть продуманной и функциональной. В зависимости от ваших потребностей, вы можете разделить пространство на отдельные зоны, такие как спальня, гостиная, кухня и ванная комната. Открытая планировка может быть хорошим решением, чтобы создать ощущение свободы и простора.



















5. Вдохновение изображениями
Ниже представлены фотографии различных дизайнерских решений для дома 12 на 12 метров. Изучите их, чтобы найти вдохновение и идеи для вашего собственного проекта.
Фото 1: Современный стиль
Очаровательный дом в современном стиле, с использованием стекла и металла. Большие окна позволяют наслаждаться прекрасным видом на природу.
Фото 2: Классический стиль
Классический дом с традиционной крышей и фасадом из кирпича. Уютный интерьер с деревянными отделками создает атмосферу тепла и комфорта.
Фото 3: Минималистичный стиль
Простой и стильный дом в минималистичном стиле. Чистые линии и гладкие поверхности делают интерьер современным и элегантным.



















Заключение
Построить одноэтажный дом размером 12 на 12 метров - это интересный и захватывающий процесс. Независимо от вашего выбора стиля и планировки, важно помнить о комфорте и функциональности вашего будущего дома. Используйте фотографии и идеи, представленные в этой статье, чтобы вдохновиться и создать идеальное пространство для вашей семьи.
Автор: ваше имя