Одноэтажные дома площадью 50 кв м являются отличным вариантом для небольших семей или пожилых людей, которые предпочитают комфорт и удобство на одном уровне. В этой статье мы рассмотрим различные планировки и дизайнерские решения, которые помогут вам создать уютное жилище.







































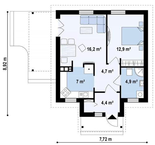
Планировки одноэтажных домов 50 кв м
Планировка является основой любого дома, поэтому важно тщательно продумать каждую деталь. В одноэтажном доме площадью 50 кв м можно реализовать различные планировочные решения, в зависимости от ваших потребностей и предпочтений.
Один из вариантов планировки включает в себя гостиную, кухню, спальню и ванную комнату. Такая планировка обеспечит комфортное проживание для небольшой семьи.
Еще одной популярной планировкой является открытая концепция, где гостиная, столовая и кухня объединены в одном пространстве. Это создает ощущение простора и свободы.






































Дизайнерские решения для одноэтажного дома 50 кв м
При выборе дизайна для одноэтажного дома 50 кв м важно учесть размеры помещений и создать гармоничное сочетание функциональности и стиля.
Одним из популярных дизайнерских решений является использование светлых оттенков, которые визуально расширяют пространство и создают атмосферу уюта.
Также стоит обратить внимание на мебель компактных размеров, которая поможет сохранить свободное пространство и сделать интерьер более функциональным.







































Фотографии одноэтажных домов 50 кв м
Для вдохновения и получения идей по дизайну вашего будущего дома, предлагаем вам ознакомиться с фотографиями одноэтажных домов площадью 50 кв м. Вы сможете увидеть различные стили и варианты оформления, чтобы найти тот, который наиболее соответствует вашим предпочтениям.
Надеемся, что эта статья помогла вам получить представление о создании уютного одноэтажного дома площадью 50 кв м. Пусть ваш новый дом станет местом, где вы будете наслаждаться комфортом и счастьем вместе с вашей семьей.