План этажа технического плана является неотъемлемой частью процесса проектирования и строительства. Этот документ представляет собой детальную схему, на которой указаны все основные элементы и коммуникации, расположенные на конкретном этаже здания. В этой статье мы рассмотрим, что такое технический план этажа, его важность и как его создавать.




























Что такое технический план этажа?
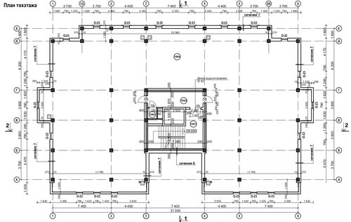
Технический план этажа - это план, который отображает все основные аспекты и детали конкретного этажа здания. Он включает в себя расположение стен, окон, дверей, электрических розеток, вентиляционных отверстий, трубопроводов и других коммуникаций. Технический план также может включать в себя обозначение назначения помещений, размеры комнат и расположение мебели.




























Важность технического плана этажа
Технический план этажа является важным инструментом для архитекторов, инженеров и строителей. Он позволяет точно представить, как будут выглядеть и функционировать помещения в здании. Технический план помогает определить оптимальное расположение коммуникаций и оборудования, учитывая эргономику и безопасность. Он также служит основой для составления бюджета, планирования строительных работ и согласования проекта с заказчиком.




























Создание технического плана этажа
Для создания технического плана этажа необходимо учесть ряд важных факторов. Во-первых, необходимо иметь точные измерения и планы здания. Во-вторых, необходимо учесть все требования и нормы, регулирующие строительство и эксплуатацию зданий. В-третьих, следует учесть функциональные потребности здания и его пользователей. Наконец, важно использовать специализированное программное обеспечение для создания точного и профессионального технического плана.
При создании технического плана этажа рекомендуется обратиться к профессионалам - архитекторам или инженерам, которые имеют опыт в проектировании подобных документов. Они смогут учесть все необходимые аспекты и предоставить наилучшие решения для вашего проекта.



























Заключение
Технический план этажа является важным элементом проектирования и строительства здания. Он позволяет точно представить расположение всех элементов и коммуникаций на конкретном этаже. Создание технического плана требует точности, учета норм и требований, а также использования специализированного программного обеспечения. Обратитесь к профессионалам, чтобы получить наилучший результат для вашего проекта.