Откатные ворота - это популярный вариант ворот, который обладает рядом преимуществ. Они позволяют сэкономить пространство на участке и обеспечивают удобство в эксплуатации. Если вы хотите создать откатные ворота своими руками, вам потребуются не только технические навыки, но и правильные чертежи и инструкция. Давайте рассмотрим основные этапы процесса и подробно ознакомимся с изготовлением откатных ворот.















Выбор материалов и инструментов
Перед тем, как приступить к созданию откатных ворот, важно определиться с материалами и инструментами, которые вам понадобятся. Для рамы ворот можно использовать различные материалы, такие как металлическая труба, деревянные бруски или профильная труба. Инструменты, которые понадобятся вам для работы, включают сварочный аппарат, болгарку, дрель, измерительный инструмент и другие.















Создание чертежей
Перед тем, как приступить к изготовлению откатных ворот, необходимо создать детальные чертежи. Чертежи помогут вам определить размеры и конструкцию ворот, а также спланировать все необходимые детали. Вы можете использовать программы для создания чертежей или нарисовать их вручную. Важно учесть все особенности вашего участка, чтобы ворота идеально вписались в окружающую обстановку.















Подготовка рамы ворот
Первым этапом изготовления откатных ворот является создание рамы. Если вы используете металлическую трубу, вам потребуется сварить необходимые элементы в соответствии с чертежами. Если вы выбрали деревянные бруски, то придется измерить и отпилить их под нужный размер. Важно обеспечить прочность и надежность рамы, чтобы ворота выдерживали нагрузки и не деформировались со временем.














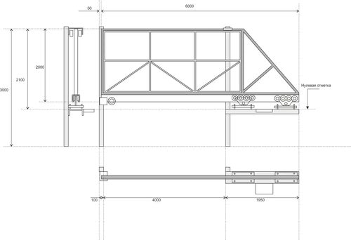
Установка направляющих и крепежных элементов
После создания рамы необходимо установить направляющие элементы, которые обеспечат плавное скольжение ворот. Направляющие могут быть выполнены из металлических профилей или специальных роликов. Крепежные элементы позволят надежно закрепить ворота на столбах или стенах. Важно следить за точностью установки, чтобы ворота работали безупречно и не заедали.















Установка запорного механизма и автоматики
Последним этапом создания откатных ворот является установка запорного механизма и, при необходимости, автоматики. Запорный механизм обеспечит надежную фиксацию ворот в закрытом положении, а автоматика позволит управлять воротами с помощью пульта дистанционного управления. Важно установить все элементы согласно инструкции производителя и проверить их работоспособность перед окончательной сборкой.















Введение в мир откатных ворот
Изготовление откатных ворот своими руками - это увлекательный и творческий процесс, который позволит вам создать функциональные и эстетичные ворота на вашем участке. Придерживаясь правильной инструкции и используя подходящие чертежи, вы сможете успешно осуществить свой проект. Не забывайте о безопасности и тщательно планируйте каждый этап работы. Удачи в создании ваших откатных ворот!











 (1).png)



Заключение
Изготовление откатных ворот своими руками требует определенных навыков и тщательного планирования. При помощи подробных чертежей и пошаговой инструкции вы сможете успешно создать откатные ворота, которые будут служить вам долгие годы. Не забывайте о безопасности и консультируйтесь с профессионалами при необходимости. Удачи в реализации вашего проекта!