Перепланировка квартиры в панельном доме — это процесс изменения планировки и размещения помещений в квартире с целью оптимизации пространства и создания комфортного жилья. В данной статье мы рассмотрим основные аспекты перепланировки, поделимся советами и покажем вам фотографии успешно реализованных проектов.






















Планировка квартиры: анализ и планирование
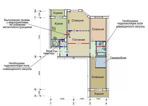
Перед началом перепланировки необходимо провести анализ текущей планировки квартиры. Используйте план помещений и обозначьте основные недостатки и проблемные зоны. Затем составьте план желаемой перепланировки, учитывая ваши потребности и предпочтения. Обратитесь к профессиональному архитектору или дизайнеру, чтобы получить профессиональные рекомендации и помощь в создании оптимального проекта.






















Технические аспекты перепланировки
Перепланировка квартиры в панельном доме требует соблюдения определенных технических норм и правил. Перед началом работ необходимо получить разрешение у соответствующих органов и ознакомиться с требованиями строительного кодекса. Обратитесь к специалистам, чтобы избежать проблем в будущем и обеспечить безопасность и качество выполненных работ.





















Примеры успешных проектов
Ниже представлены фотографии нескольких успешно реализованных проектов перепланировки квартир в панельных домах:
[Фотография 1]
[Фотография 2]
[Фотография 3]





















Важные аспекты перепланировки
При перепланировке квартиры в панельном доме следует учитывать несколько важных аспектов:
1. Статическая безопасность
Изменение планировки может повлиять на несущие конструкции здания, поэтому важно обратить внимание на статическую безопасность. Консультируйтесь с инженерами и строительными специалистами, чтобы гарантировать безопасность вашего жилья.
2. Электрика и сантехника
Перепланировка часто требует изменения расположения электрических и сантехнических коммуникаций. Обратитесь к квалифицированным специалистам, чтобы провести работы в соответствии с требованиями и нормами безопасности.
3. Вентиляция и проветривание
Убедитесь, что перепланировка не затруднит естественную вентиляцию и проветривание помещений. При необходимости установите дополнительные системы вентиляции, чтобы обеспечить комфортный микроклимат в квартире.






















Выводы
Перепланировка квартиры в панельном доме может быть сложным процессом, требующим профессионального подхода и соблюдения технических норм. Однако, с правильным планированием и обращением к специалистам, вы сможете создать комфортное и функциональное жилье, отвечающее вашим потребностям.