Строительство и дизайн дома - это увлекательное и творческое занятие, которое позволяет создать идеальное место для жизни и отдыха. Одной из популярных концепций является дом размером 6 на 10 метров, который обеспечивает оптимальное сочетание пространства и функциональности. В этой статье мы рассмотрим различные аспекты такого дома, а также предоставим вам полезные советы и идеи для его создания.


















Внешний вид и ландшафтный дизайн
Перед тем как войти в дом, важно создать привлекательный внешний вид и уютную обстановку. Разработайте план ландшафта, учитывая размер участка и вашу индивидуальность. Разместите цветочные клумбы, декоративные кустарники и деревья таким образом, чтобы они придавали дому характер и создавали приятную атмосферу.



















Планировка и дизайн интерьера
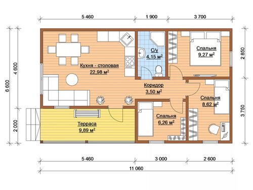
При проектировании дома 6 на 10 метров особое внимание следует уделить планировке и дизайну интерьера. Важно максимально эффективно использовать каждый квадратный метр, чтобы создать функциональные и уютные помещения. Разделите пространство на зоны: гостиная, спальня, кухня, ванная комната и другие необходимые помещения. Используйте светлые цвета, чтобы визуально расширить пространство, и добавьте элементы декора, которые подчеркнут ваш стиль и предпочтения.



















Освещение и вентиляция
Освещение и вентиляция играют важную роль в создании комфортного и здорового дома. Разместите окна таким образом, чтобы максимально использовать естественный свет и обеспечить хорошую циркуляцию воздуха. Дополните их искусственными источниками света, которые будут создавать уютную атмосферу в темное время суток.



















Размещение мебели и хранение
При выборе мебели для дома размером 6 на 10 метров, учитывайте его компактность и функциональность. Используйте многофункциональные предметы мебели, которые могут служить хранением для вещей. Максимально оптимизируйте использование пространства, чтобы дом выглядел аккуратным и ухоженным.



















Простор на открытом воздухе
Не забывайте о создании комфортной зоны на открытом воздухе. Разместите террасу или веранду, где вы сможете отдыхать и проводить время с семьей и друзьями. Добавьте удобную мебель, зону для барбекю или садовые грядки, чтобы наслаждаться свежим воздухом и природой.



















Заключение
Дом размером 6 на 10 метров - это прекрасный вариант для тех, кто ценит эстетику, комфорт и удобство. Важно тщательно спланировать планировку и дизайн интерьера, уделяя особое внимание каждой детали. Используйте наши советы и идеи, чтобы создать уютное и функциональное пространство, где вы будете наслаждаться жизнью и отдыхом.