Кухонный гарнитур является одной из самых важных частей кухни. Он не только определяет функциональность и эстетику пространства, но и должен быть удобным и практичным. Один из ключевых аспектов при выборе кухонного гарнитура - это его размеры. В этой статье мы рассмотрим различные размеры кухонных гарнитуров и представим фотографии, чтобы помочь вам в выборе подходящего варианта.




























Стандартные размеры кухонного гарнитура
Стандартные размеры кухонного гарнитура могут варьироваться в зависимости от производителя и модели. Однако, существуют определенные стандарты, которые рекомендуется учитывать при выборе гарнитура. Вот некоторые из них:
Высота гарнитура
Средняя высота кухонного гарнитура составляет примерно 85-90 см. Это удобная высота, позволяющая легко достигать верхних полок и шкафов без необходимости использования дополнительных ступенек или табуреток. Однако, высоту гарнитура можно выбирать в зависимости от индивидуальных предпочтений и роста пользователей.
Ширина гарнитура
Стандартная ширина кухонного гарнитура составляет примерно 60-70 см. Это позволяет установить стандартные бытовые приборы, такие как плита или посудомоечная машина, а также обеспечивает достаточное пространство для хранения посуды и кухонных принадлежностей. Однако, ширина гарнитура может быть изменена в соответствии с размерами вашей кухни и индивидуальными потребностями.
Глубина гарнитура
Стандартная глубина кухонного гарнитура составляет примерно 60-65 см. Это позволяет разместить кухонную технику и предметы хранения без проблем. Опять же, глубину гарнитура можно изменить в соответствии с вашими потребностями.




























Особенности выбора размеров кухонного гарнитура
При выборе размеров кухонного гарнитура необходимо учесть несколько важных факторов:
Размеры кухни
Перед выбором гарнитура необходимо измерить размеры вашей кухни и учесть особенности расположения окон, дверей и других элементов интерьера. Это поможет определить оптимальную компоновку гарнитура и выбрать подходящие размеры.
Функциональность
Размеры гарнитура должны соответствовать вашим потребностям и предпочтениям в использовании кухни. Учтите количество членов семьи, частоту приготовления пищи и необходимость хранения продуктов и посуды. Важно создать комфортное и функциональное пространство.
Дизайн
Размеры гарнитура также влияют на общий дизайн кухни. Выберите гарнитур, который гармонично впишется в интерьер и создаст желаемый стиль.




























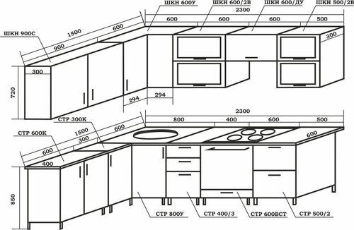
Фотографии различных размеров кухонных гарнитуров
Ниже представлены фотографии различных размеров кухонных гарнитуров, чтобы визуально представить масштабы и возможности:
[Вставьте фотографии различных кухонных гарнитуров]




























Заключение
Выбор размеров кухонного гарнитура - важный этап при создании функциональной и эстетически привлекательной кухни. Учтите размеры кухни, функциональность и дизайн, чтобы выбрать подходящий вариант. Обратите внимание на стандартные размеры гарнитуров, но не забывайте, что они могут быть изменены в соответствии с вашими потребностями. И не забудьте воспользоваться фотографиями, чтобы визуально представить размеры и возможности гарнитуров.