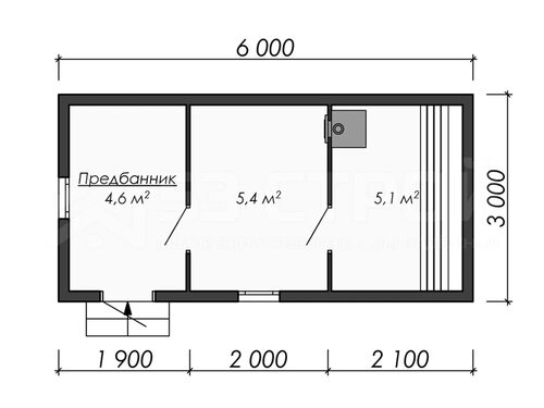
Планировка бани - важный этап в процессе строительства или реконструкции. Независимо от того, строите вы баню для отдыха или для использования в качестве сауны, правильная планировка помещений поможет создать комфортное и функциональное пространство. В данной статье мы рассмотрим планировку бани размером 6х3 метра на три помещения и предложим вам несколько вариантов, сопровожденных фотографиями, для вдохновения.



























Вариант 1: Баня с раздевалкой, парной и комнатой отдыха
Первый вариант планировки предусматривает разделение бани на три основных помещения: раздевалку, парную и комнату отдыха. Такая планировка идеально подходит для тех, кто предпочитает проводить время в бане в компании друзей или семьи.
Раздевалка является первым помещением, в которое вы попадаете при входе в баню. Здесь можно расположить шкафы для одежды, полки для аксессуаров и другие элементы хранения. Важно предусмотреть достаточно места для комфортного переодевания.
Парная - основное помещение бани, где можно насладиться паром и провести процедуры испарения. Размеры парной зависят от ваших предпочтений и потребностей. Рекомендуется установить печь и сауну в соответствии с размерами помещения и обеспечить хорошую вентиляцию.
Комната отдыха - место, где можно расслабиться после парной и насладиться атмосферой бани. Здесь можно разместить удобные сидения, столик, а также дополнительные элементы интерьера, такие как растения и декоративные элементы.



























Вариант 2: Баня с парной, комнатой отдыха и помывочным помещением
Второй вариант планировки предусматривает наличие помывочного помещения вместо раздевалки. Помывочное помещение обычно содержит раковину, душ и туалет, что позволяет осуществлять гигиенические процедуры прямо в бане.
Парная и комната отдыха остаются теми же самыми, что и в первом варианте планировки. Однако наличие помывочного помещения обеспечивает большую функциональность и удобство использования бани.



























Вариант 3: Баня с парной, комнатой отдыха и мини-кухней
Третий вариант планировки предусматривает наличие мини-кухни вместо раздевалки или помывочного помещения. Мини-кухня в бане позволит вам приготовить легкие закуски и напитки, не покидая комфортного пространства. Здесь можно установить раковину, холодильник, микроволновую печь и другие необходимые элементы.
Парная и комната отдыха остаются теми же самыми, что и в предыдущих вариантах. Добавление мини-кухни придает бане дополнительный функционал и создает уютную атмосферу для отдыха и приятного времяпрепровождения.

















.jpg)









Заключение
Планировка бани 6х3 на три помещения может быть разнообразной и зависит от ваших предпочтений и потребностей. Выберите вариант, который лучше всего соответствует вашим требованиям и создайте уютное и функциональное пространство для отдыха и релаксации. Не забудьте обратить внимание на вентиляцию и безопасность при планировании и строительстве бани. Удачи в вашем проекте!