Поиск идеального дома может быть сложным заданием, но дом 8х8 двухэтажный является одним из лучших вариантов для комфортного проживания. Этот дом обладает достаточным пространством и функциональностью, чтобы удовлетворить потребности любой семьи. Давайте рассмотрим подробнее особенности и преимущества такого дома.






















Простор и удобство
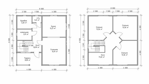
Дом 8х8 двухэтажный предлагает обширное пространство для размещения всех необходимых помещений. На первом этаже можно разместить просторную гостиную, кухню, столовую, ванную комнату и другие функциональные помещения. На втором этаже можно создать уютные спальни, гардеробные и ванные комнаты. Большая площадь дома позволяет расположить все помещения таким образом, чтобы каждый член семьи имел свою личную зону.






















Функциональность и гибкость планировки
Дом 8х8 двухэтажный предлагает возможность создать функциональную и удобную планировку. Вы можете выбрать оптимальное расположение комнат, а также вносить изменения в планировку в соответствии с вашими потребностями. Благодаря гибкости планировки, вы можете настроить дом под себя и создать идеальное пространство для комфортного проживания.











_8x8_plan.jpg)










Строительные материалы и технологии
При возведении дома 8х8 двухэтажного можно использовать различные строительные материалы и технологии. От каркасных конструкций до кирпичной кладки - выбор материалов зависит от ваших предпочтений и бюджета. Важно учесть, что правильный выбор материалов и технологий позволит создать долговечный и надежный дом.






















Дизайн и интерьер
Дом 8х8 двухэтажный предоставляет огромное поле для творчества в области дизайна и интерьера. Вы можете выбрать стиль и цветовую гамму, которые отражают вашу индивидуальность и создают уютную атмосферу. Используйте мебель, аксессуары и декор, чтобы создать уникальный интерьер, который будет отражать ваш вкус и предпочтения.






















Фото дома 8х8 двухэтажного
Предлагаем вам ознакомиться с фотографиями дома 8х8 двухэтажного, чтобы получить представление о его внешнем виде и внутреннем оформлении. Ниже вы найдете некоторые варианты дизайна и планировки, которые могут вас вдохновить.
Вывод:
Дом 8х8 двухэтажный - это идеальное решение для тех, кто ищет комфортное и просторное жилье. Благодаря своей площади и гибкости планировки, такой дом может быть адаптирован под любые потребности и предпочтения. Рассмотрите варианты дизайна и планировки, ознакомьтесь с фотографиями и приступайте к созданию своего идеального дома 8х8 двухэтажного!